Ufficio in vendita

Marsala, Via XI Maggio
€ 512.500
8 locali 8 locali
285 Mq 285 Mq
2 bagni 2 bagni

Ufficio in vendita

Marsala, Via XI Maggio

Descrizione annuncio

MARSALA

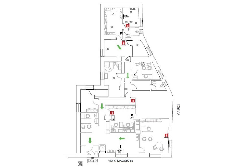
VIA XI MAGGIO, nel cuore del Centro Storico di Marsala, zona prettamente commerciale, caratterizzata dalla presenza di attività commerciali, centro della movida notturna, proponiamo immobile di categoria D/5, ubicato al piano terra di uno stabile d'epoca che conta due piani di altezza. Precedentemente destinato a Banca, ha esposizione sia su via principale che su via Fici e ricopre una superficie commerciale di 285 mq disposti come di seguito riportato; ingresso su ampia sala d'attesa, otto vani disimpegnati l'un l'altro e doppio servizio igienico. Arieggiato e luminoso grazie alla presenza di finestre in ogni vano, dispone di servizio antincendio, videosorveglianza e altri impianti da aggiornare. Internamente versa in condizioni discrete.

E' possibile visionare l'immobile dal lunedì al sabato previo avviso telefonico, chiamando al numero fisso 091.976.16.25 oppure inviando un messaggio Whatsapp 388.12.36.557.

Stai pensando di richiedere un prestito o ad accedere ad un mutuo per realizzare il tuo sogno imprenditoriale o il tuo investimento? Affidati ai professionisti del settore creditizio, con Kiron si può. Il Gruppo Tecnocasa mette a disposizione dei suoi clienti i consulenti del credito che offrono un servizio a 360 gradi accompagnandoti dalla consulenza iniziale fino all'erogazione. Chiama ora e fissa la tua consulenza GRATUITA.

OGNI AGENZIA HA UN PROPRIO TITOLARE ED E'AUTONOMA.

Mostra tutto

Nelle vicinanze

Trasporto pubblico Trasporto pubblico
Marsala
Marsala
940 m
Trasporto pubblico
290 m
Piazza Caprera
Piazza Caprera
1,4 Km
Scuole Scuole
Istituto tecnico commerciale "Giuseppe Garibaldi", succursale di Via Fici
80 m
Liceo Classico "Giovanni XXIII"
280 m
Scuola Secondaria "Giuseppe Mazzini"
880 m
Istituto tecnico commerciale "Giuseppe Garibaldi"
2,0 Km
Farmacia Farmacia
Calcagno
20 m
Rinaldo
200 m
Polizzotti Giuseppe
210 m
Sajeva Marianna
330 m
Titone Nicolò Michele
360 m
Supermercati Supermercati
Supermercati
590 m
Superstore Decò
1,5 Km
Spacclo Allmentare
1,6 Km
Penny
2,0 Km
EuroSpin
2,9 Km
Negozi Negozi
Negozi
90 m
Men
160 m
Accento
180 m
Manono panificio
190 m
Se
200 m
Bar Bar
Bar
130 m
Bar Comunale
190 m
Bar Kennedy
260 m
Ristoranti Ristoranti
Ciacco Putia Gourmet
150 m
Trattoria Garibaldi
210 m
La Marinara
240 m
Pizzeria Rosso Pomidoro
310 m
Ventu di Mari
320 m
Mostra tutto

Caratteristiche

Rif.:
60869454
Piano:
Terra di 2
Totale piani:
2
Condizionamento:
Autonomo
Ascensore:
No
Riscaldamento:
Autonomo
Mostra tutto
Prezzo Prezzo
€ 512.500
Rata mutuo Rata mutuo
€ 2.423 / mese
Spese annue Spese annue
€ 120
Proponi il tuo prezzoProponi il tuo prezzo

Classe Energetica

G
G
G
G
G
G
G
G
G
EP globale non rinnovabile:
175.00 kW h/m² anno
EP globale rinnovabile:
175.00 kW h/m² anno
EP invernale del fabbricato:
EP estiva del fabbricato:
Anno di costruzione:
1960
Riscaldamento:
Autonomo
Tipo impianto:
A radiatori
Tipo alimentazione:
Metano

Ti interessa visionare l'immobile?

Fissa un appuntamento  Fissa un appuntamento

Richiedi informazioni

Clicca su Leggi per aprire l'informativa
* Questi campi sono obbligatori

Calcola il tuo mutuo

Semplice e senza impegno
Anticipo

( % )
Mutuo

( % )

pochi semplici passi

inserisci i tuoi dati
Questionario completato
Grazie per aver richiesto un appuntamento senza impegno con un nostro Consulente del Credito e Assicurativo.

Hai inserito correttamente tutti i dati necessari e a breve riceverai una e-mail con un link da convalidare per inviare i tuoi dati.
Affiliato
Palermo Impresa Sas
Via Restivo, 176-176/A 90144 Palermo (PA)

Il nostro staff


  • Maurilio Anfuso
    Collaboratore

  • Santo Zito
    Collaboratore

  • Serafino Biondo
    Affiliato
Via Restivo, 176-176/A 90144 Palermo (PA)
Zona: Palermo Centro Nord-Sciuti-Strasburgo-Capaci
Mostra su mappa
Orari: Lunedì-Venerdì 09:00/13:00 e 15:30/20:00 Sabato 09:00/13:00 e 16:00/19:00
Affiliato
Palermo Impresa Sas
Via Restivo, 176-176/A 90144 Palermo (PA)

2026 Tecnocasa Franchising S.p.A. - P. IVA 08365160152 - Via Monte Bianco 60/A 20089 Rozzano (MI). Ogni agenzia ha un proprio titolare ed è autonoma. Privacy policy | Policy utilizzo | Cookie policy